0 (533) 6-30-30
0 (777) 77-815
г. Тирасполь, ул. Ленина д. 7/1,
ТЦ «Монарх», офис 11-а
raicheva.md@mail.ru
Цена: 40 000 $
Алёна Ивановна Страцинская
  • Агент по недвижимости
  • stralena@yandex.ru
  • 778 631-31, 777 605-72

Информация

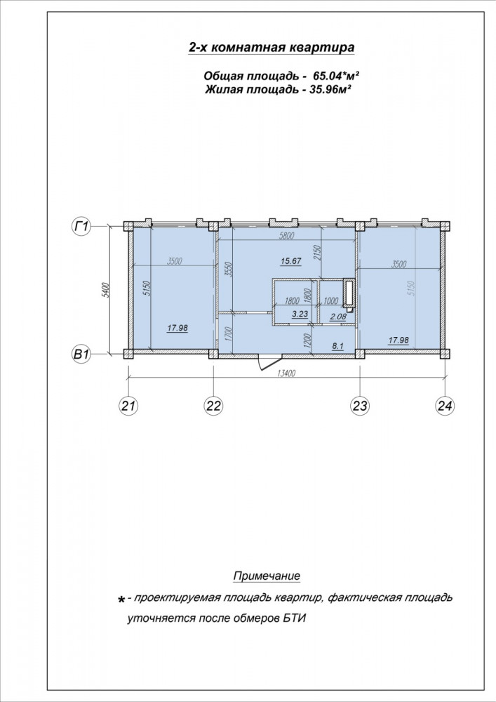
Продаются 2-комнатные квартиры на Балке в новом 5 ти этажном доме, который расположен по ул, Юности. Квартиры - 65 м. кв.-40000 и 66,30 м. кв. -40500 у. е. Дом кирпичный, утепленный пенопластом 5 см. и декоративной штукатуркой, крыша шатровая. есть полноценный чердак. На этаже 5 квартир в большом тамбуре с отсекающей дверью. В квартирах установлены: входная дверь, стеклопакеты, на полу - стяжка, внутренние перегородки - фортан, санузел раздельный. Заведены точки подключения - свет, газ, вода. Предусмотрено автономное отопление. Во дворе предусмотрены парковочные карманы для автотранспорта, детская и спортивная площадки. Отличная инфраструктура, в шаговой доступности 12 школа, детские сады, торговый центр, парк, остановки автотранспорта.

  • Объект
    Квартира
  • Код объекта
    12006
  • Количество комнат
    2
  • Район
    Балка
  • Улица
    Юности
  • Дом
    76
  • Состояние
    Серый вариант
  • Площадь (общ/жил/кух), м.кв.
    65/36 /15.6
  • Этаж
    2/5
  • Угловая
    Нет
  • Балконов
    0
  • Материал
    Кирпичный